-
月額費用
124,400円~(税込)
-
TEL
06-6310-0140
-
FAX
06-6310-0141
-
居室数
56室
-
定員
56名
-
所在地
〒564-0033
大阪府吹田市東御旅町9番19号
-
協力医療機関
- 全56室
- 訪問介護
- 訪問看護
- 訪問鍼灸
- 訪問診療
- 訪問歯科
- 静かな周辺
- 新型コロナウイルス感染症対策
施設長からみなさまへ
住宅型有料老人ホーム HIBISU(ハイビス)吹田は、阪急京都線「上新庄駅」から徒歩約5分、阪急千里線「下新庄駅」から約16分の閑静な住宅地に囲まれた好立地の住宅型有料老人ホームです。
徒歩1分ほどで国道479号(大阪環状線)、大型ショッピング施設やレストランなどがあり、とても暮らしやすい環境です。住宅型有料老人ホーム HIBISU(ハイビス)吹田は、地上5階建てで各居室はトイレと洗面台付きの完全個室が56室ご用意されております。


施設の特徴features
当施設では、ご利用者様とご家族の皆様に、毎日を安心してお過ごしいただけるよう、6つの安心サポート体制を整えております。
介護・医療・生活支援の各面からきめ細やかなサービスをご提供し、ご利用者様一人ひとりの暮らしに寄り添ったサポートを実現しています。
- 24時間看護体制
- 安心料金設定
- 提携医療機関
- 完全個室
- 栄養管理
- 訪問サービス
※各施設によって、サービス内容は異なります。
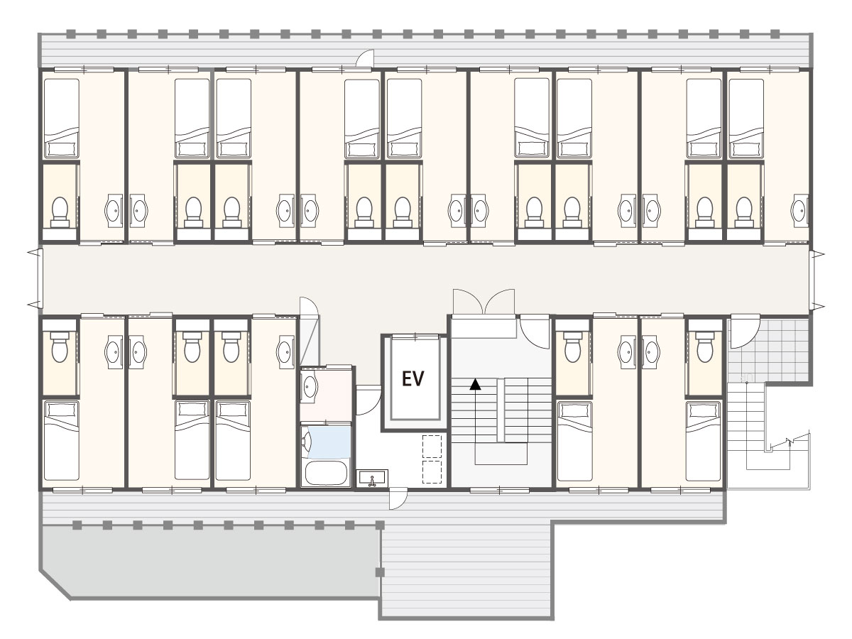
フロアガイドfloor guide
地上5階建てで全56室が完全個室の住宅型有料老人ホームです。
- 食堂&ホール
- 一般浴室(4室)
- 機械浴室
- 車いすトイレ
- 洗濯室
- エレベーター
HIBISUではご利用者様が安心して日々の暮らしを楽しんでいただくために、新型コロナウイルス対策や持続可能な環境目標(SDGs)など、常に安全な施設運営に取り組んでおります。
ご利用料金price
- エアコン
- トイレ
- 洗面台
- 緊急通報装置
単身部屋
月額費用
124,400円~(税込)
月額費用内訳
- 家賃: 73,000円
- 管理費: 20,000円
- 水光熱費: 2,000円
- 食費: 29,400円
別途費用
- リネン費: 1,500円
入居一時金
- 入居金: 146,000円
※1 一か月(30日)のご利用例です。
※2 介護サービスの自己負担分、医療費、日用品は別途となります。
※3 食費は1日3食30日お召し上がりいただいた場合の目安です。
介護サービスの自己負担分(※1割負担の方)copayment
| 要介護1 | 約17,000円 |
| 要介護2 | 約20,000円 |
| 要介護3 | 約27,000円 |
| 要介護4 | 約31,000円 |
| 要介護5 | 約37,000円 |
※介護サービスや負担割合は地域によって異なります。
看護・医療面の受け入れ体制acceptance
[○:対応可 ▲:要相談 ×:対応不可]
-
認知症
〇
-
パーキンソン病
〇
-
統合失調症
〇
-
胃ろう
▲
-
バルーン
〇
-
精神疾患
〇
-
経鼻経管栄養
▲
-
中心静脈栄養
▲
-
悪性腫瘍
〇
-
インスリン
〇
-
ペースメーカー
〇
-
終末期
〇
-
人工透析
〇
-
褥瘡処置
〇
-
肝炎
〇
-
脊椎小脳変性症
▲
-
ALS
▲
-
結核
▲
-
たん吸引
▲
-
気管切開
▲
-
MRSA
〇
-
ストーマ
〇
-
在宅酸素
〇
-
ESBL
▲
※上記はあくまでも目安となりますので、疾患・症状についてはご相談ください。
入居受け入れについては、診断書・ご面談などにより検討の上、結果をお知らせいたします。
アクセスaccess
-
施設名
住宅型有料老人ホーム HIBISU吹田
-
所在地
〒564-0033
大阪府吹田市東御旅町9番19号
-
公共交通機関
阪急京都線「上新庄駅」から徒歩約5分
-
お車
吹田市道内本町東御旅町線一方通行を入ってすぐ
-
TEL
06–6310–0140
-
FAX
06–6310–0141
-
開設
2023年8月
-
総室数
56室
ご入居までの流れflow
STEP.1
施設までお気軽にご相談ください。
ご説明・施設見学のご案内をいたします。
STEP.2
必要書類をご用意していただき入居申込書のご提出。
必要書類:診療情報提供書、看護サマリー
入居審査
STEP.3
ご面談をご自宅、病院にて行います。
提出書類や面談内容をもとに、入居の可否をご連絡いたします。
STEP.4
賃貸借契約を含め各種重要契約の締結。
STEP.5
新しい生活のスタート!
※ご状態、ご家族によりご入居いただけない場合があります
よくあるご質問FAQ
Q. レクリエーションは実施していますか?
施設で異なりますが、定期的に行っております。
詳細は各施設へご確認ください。
Q. お風呂は何回ありますか?
ご入居者様の状態に応じた訪問介護サービスを作成しますが、週2回以上のお風呂となります。
Q. 面会は可能ですか?
可能です。面会の際には、以下の感染防止対策をお願いします。
①面会者様には必ずマスクをご着用のうえ、感染対策にご協力をお願いします。
②面会前後は、使用した机、椅子、ドアノブなどの清掃および換気をお願いします。
※面会に際して、発熱、咳、喉の痛み、倦怠感、嗅覚、味覚異常などの症状がある場合、面会をお断りする場合があります。
Q. 外出・外泊は可能ですか?
可能です。
特別な事情を除き、2~3日前以内にお申し込みをお願いします。
面会時と同様の感染防止対策をお願いしております。
Q. 看取り対応はしていますか?
対応しております。
ご家族の方の泊まり込みが可能となります。
さらに詳しく知りたい方は、各施設または担当者へお気軽にお問合せください。