-
月額費用
91,000円~(税込)
-
TEL
072-744-3466
-
FAX
072-744-3465
-
居室数
28室
(夫婦部屋あり) -
定員
32名
-
所在地
〒664-0007
兵庫県伊丹市北野六丁目1番2
-
協力医療機関
- 全28室
- 夫婦部屋あり
- 訪問介護
- 訪問看護
- 訪問鍼灸
- 訪問診療
- 訪問歯科
- 静かな周辺
- 新型コロナウイルス感染症対策
施設長からみなさまへ
2024年2月にオープンの「HIBISU伊丹trust」は、JR宝塚線・福知山線「中山寺駅」からバスで6分乗車、降車後徒歩約5分のサービス付き高齢者向け住宅です。閑静な住宅街のなかの非常に暮らしやすい地域となります。
定期的にイベントを開催し、楽しんで頂きながら生き生きとしたシニアライフをサポートします。


施設の特徴features
当施設では、ご利用者様とご家族の皆様に、毎日を安心してお過ごしいただけるよう、6つの安心サポート体制を整えております。
介護・医療・生活支援の各面からきめ細やかなサービスをご提供し、ご利用者様一人ひとりの暮らしに寄り添ったサポートを実現しています。
- 24時間看護体制
- 安心料金設定
- 提携医療機関
- 完全個室
- 栄養管理
- 訪問サービス
※各施設によって、サービス内容は異なります。
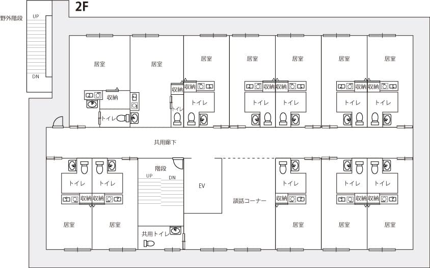
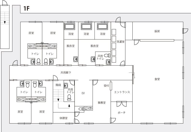
フロアガイドfloor guide
周辺には、大型スーパーやドラッグストアなど、お買い物に便利な施設が立ち並びます。
- 食堂&ホール
- 談話コーナー
- 一般浴室
- 共用トイレ
- 談話室
- エレベーター
HIBISUではご利用者様が安心して日々の暮らしを楽しんでいただくために、新型コロナウイルス対策や持続可能な環境目標(SDGs)など、常に安全な施設運営に取り組んでおります。
ご利用料金price
- エアコン
- トイレ
- 洗面台
- 緊急通報装置
- 収納
一般居室
月額費用
91,000円~(税込)
月額費用内訳
- 家賃: 58,000円
- 管理費: 11,000円
- 状況把握生活相談サービス費: 22,000円
別途費用
- リネン費: 2,000円
- 食費: 45,360円
入居一時金
- 入居金: 100,000円
- 火災保険料: 11,000円(2年更新)
夫婦部屋
月額費用
126,000円~(税込)
月額費用内訳
- 家賃: 60,000円
- 管理費: 22,000円
- 状況把握生活相談サービス費: 44,000円
別途費用
- リネン費: 4,000円
- 食費: 44,000円
入居一時金
- 入居金: 100,000円
- 火災保険料: 11,000円(2年更新)
夫婦部屋 家賃:60,000円 または 63,000円
※1 一か月(30日)のご利用例です。
※2 介護サービスの自己負担分、医療費、日用品は別途となります。
※3 食費は1日3食30日お召し上がりいただいた場合の目安です。
介護サービスの自己負担分(※1割負担の方)copayment
| 要介護1 | 約17,000円 |
| 要介護2 | 約20,000円 |
| 要介護3 | 約27,000円 |
| 要介護4 | 約31,000円 |
| 要介護5 | 約37,000円 |
※介護サービスや負担割合は地域によって異なります。
看護・医療面の受け入れ体制acceptance
[○:対応可 ▲:要相談 ×:対応不可]
-
認知症
〇
-
パーキンソン病
〇
-
統合失調症
〇
-
胃ろう
×
-
バルーン
〇
-
精神疾患
〇
-
経鼻経管栄養
▲
-
中心静脈栄養
▲
-
悪性腫瘍
〇
-
インスリン
〇
-
ペースメーカー
〇
-
終末期
〇
-
人工透析
〇
-
褥瘡処置
〇
-
肝炎
〇
-
脊椎小脳変性症
〇
-
ALS
〇
-
結核
▲
-
たん吸引
〇
-
気管切開
〇
-
MRSA
〇
-
ストーマ
〇
-
在宅酸素
〇
-
ESBL
〇
※上記はあくまでも目安となりますので、疾患・症状についてはご相談ください。
入居受け入れについては、診断書・ご面談などにより検討の上、結果をお知らせいたします。
アクセスaccess
-
施設名
サービス付き高齢者向け住宅 HIBISU伊丹trust
-
所在地
〒664-0007
兵庫県伊丹市北野六丁目1番2
-
公共交通機関
JR宝塚線・福知山線「中山寺駅」南口下車。 伊丹市営バス5系統「JR中山寺駅」から「北センター前」へ乗車6分。 降車後徒歩約5分で当施設へ
-
お車
伊丹北高校東交差点を左折→突き当たり右折→突き当たり左折→突き当たり左折→一番最初の曲がり角右折し直進
-
TEL
072–744–3466
-
FAX
072–744–3465
-
開設
2024年2月
-
総室数
28室
ご入居までの流れflow
STEP.1
施設までお気軽にご相談ください。
ご説明・施設見学のご案内をいたします。
STEP.2
必要書類をご用意していただき入居申込書のご提出。
必要書類:診療情報提供書、看護サマリー
入居審査
STEP.3
ご面談をご自宅、病院にて行います。
提出書類や面談内容をもとに、入居の可否をご連絡いたします。
STEP.4
賃貸借契約を含め各種重要契約の締結。
STEP.5
新しい生活のスタート!
※ご状態、ご家族によりご入居いただけない場合があります
よくあるご質問FAQ
Q. レクリエーションは実施していますか?
施設で異なりますが、定期的に行っております。
詳細は各施設へご確認ください。
Q. お風呂は何回ありますか?
ご入居者様の状態に応じた訪問介護サービスを作成しますが、週2回以上のお風呂となります。
Q. 面会は可能ですか?
可能です。面会の際には、以下の感染防止対策をお願いします。
①面会者様には必ずマスクをご着用のうえ、感染対策にご協力をお願いします。
②面会前後は、使用した机、椅子、ドアノブなどの清掃および換気をお願いします。
※面会に際して、発熱、咳、喉の痛み、倦怠感、嗅覚、味覚異常などの症状がある場合、面会をお断りする場合があります。
Q. 外出・外泊は可能ですか?
可能です。
特別な事情を除き、2~3日前以内にお申し込みをお願いします。
面会時と同様の感染防止対策をお願いしております。
Q. 看取り対応はしていますか?
対応しております。
ご家族の方の泊まり込みが可能となります。
さらに詳しく知りたい方は、各施設または担当者へお気軽にお問合せください。